Plumosa House Plan #729 | 3 Bed+Study, 4 Bath | 3,262 sq. ft.






































Plumosa House Plan #729 | 3 Bed+Study, 4 Bath | 3,262 sq. ft.
**The File Type and Price you select above is for a digital download only.**
Not available for construction on Boca Grande, Florida.
Photographed homes may have been modified from original plan.
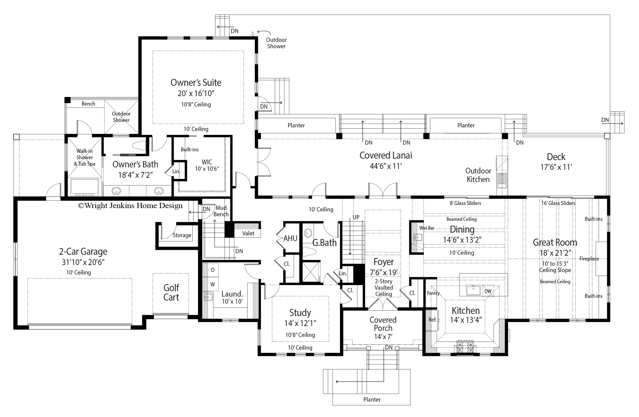
HOUSE PLAN NUMBER: 729
Total Living: 3,262 sq. ft.
Bedrooms: 3+Study
Bathrooms: 4
Foundation: Stem Wall
The Plumosa blends in beautifully with its tropical setting. This family home is designed to accommodate a very active lifestyle. Open concept living, with exceptional views from the great room, kitchen and dining area.
The front double door opens to the generous foyer with a two-story vaulted ceiling. The Foyer’s vaulted ceiling leads past the stairs on the left, with a wet bar on the right. French doors open to beautiful views beyond the rear covered patio.
The grand opening public spaces are all to the right of the foyer. Soaring beamed ceilings top the Great Room and Dining spaces. Sun pours in from every direction to this open concept living area. A wall of glass sliders open the Great Room and Dining Room to the covered lanai. A wet bar separates the dining and foyer area.
The gourmet Kitchen offers a large eat-at-peninsula and offers sight lines to the Dining and Great Rooms. A massive covered lanai provides an outdoor kitchen and is perfect for al fresco dining.
A private study shares a full bath with the public spaces.
The Owner’s Suite is secluded to the rear of the home with a private entrance just beyond the Study/Bed 4. Rows of windows take in views of the rear and the covered lanai. The massive walk-in closet is a dream come true. The Laundry room is located conveniently around the corner, off the hallway to the garage.
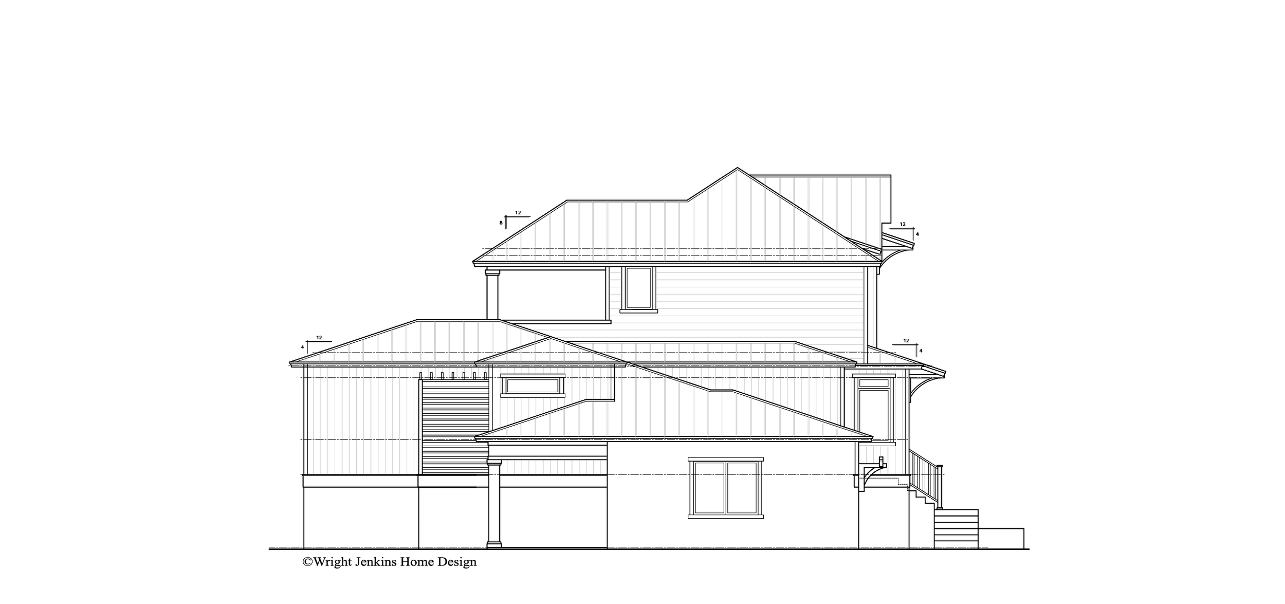
Upstairs a bridge provides beautiful views and lead to two more Guest Suites each with their own private bath and covered Lanai.
The 2-Car Garage with golf cart bay is one step up to the mud room with valet.
Designed into the Plumosa House Plan, are exclusive energy-saving techniques. When built to these specs, it can result in a 50% savings when compared to other new homes. A 60-70% savings when compared to older homes.
Living area and overall dimensions are calculated for 2x6 frame exterior walls.
These calculations will vary for any other wall system.
Total Living 3,262 sq. ft.
First Floor 2,477 sq. ft.
Second Floor 785 sq. ft.
Bedrooms 3 Bed+Study
Bathrooms 4 Bathrooms
Exterior Wall 2×6 Frame
Foundation Crawlspace
Plan Width 105’
Plan Depth 56’10"
Entry 98 sq. ft.
Rear Patio 262 sq. ft.
Garage Bays 2
Garage Load Front
Garage 729 sq. ft.
Roof Pitch 8/12 - 4/12
Ridge Height 29’9”
Total Square Feet 5,097 sq. ft.
Plan Features Covered Entry, 2-Story Foyer, Study, 2-Car Garage+Golf Cart Bay, Outdoor Kitchen, Fireplace